Lokal za izdavanje, Centar, 1.872€, 104m²
















1.872 €
- Prizemlje
- Oglas oglašava agencija pod reg. brojem 1436
Opis oglasa
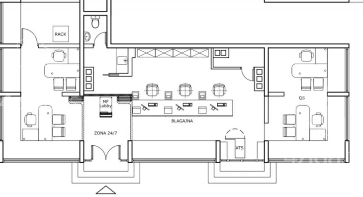
U centru grada, u Karađorđevoj ulici izdaje se lokal od 104m2, u kom se trenutno nalazi AIK BANKA.
Lokal se sastoji od:
Lobija
Velike kancelarije (trenutno se koristi kao blagajna)
WC-a
Ostave
Veće ostave koja se koristi kao rack soba
Dve kancelarije
Takođe poseduje:
Grejanje: Centralno
Trostarnu orijentaciju
Veliki broj parking mesta u javnoj zoni u ulici (20m od samog lokala)
ALU stolariju
Uslovi zakupodavca:
- Minimalni zakup: 1 Godina
- Depozit: 1 Kirija
- Garantovana kirija za vreme trajanja ugovora
- Ugovor
Mesečni računi:
- Struja: Po potrošnji
- Voda: Po potrošnji
Ulazak u posed: 01.01.2026.
Nalazi se na spratu: prizemlje
Agencijska provizija za posredovanje: 50 % od cene zakupa (Jednokratno)
Broker Nekretnine
Broker Aleksandar
Kancelarija: Karađorđeva 2a
*Sačuvaj oglas uz belešku i primaj obaveštenja o njihovom pojeftinjenju ili pojavljivanju sličnih
Prikaz poslovnog prostora na mapi
Parkovi u blizini
- Park na Trgu kralja Petramanje od 1 min
- Narodna bašta Pančevo22 min
- Park Barutana26 min

Obeležja kulture u blizini
- Spomenik vojvodi Stevanu Šupljikcu7 min
- Zgrada Stare bolnice8 min
- Kompleks Svilara9 min

Škole/Fakulteti/Vrtići u blizini
- Osnovna škola (Osnovna škola Jovan Jovanović Zmaj)6 min
- Srednja škola (Privatna srednja stručna škola Vizija)5 min
- Vrtić (Predškolska ustanova Dečja radost Pančevo)9 min
- Fakultet (Stomatološki fakultet Pančevo)12 min

- Bolnica (Bolnica za očne bolesti Pančevo)6 min
- Klinika (Poliklinika MD)7 min
- Teretana (Fitnes klub Forma)4 min
- Prodavnica (Maxi Supermarket)2 min
- Restoran (Bistro Kokoschka)2 min
- Kafana (Stara Vajfertova pivara)6 min
- Taksi stajalište (Taxi stanica)5 min
- Autobuska stanica (Gradska uprava)2 min
- Banka (OTP banka)1 min
- Pošta (Pošta Pančevo 6)3 min
Kontakt oglašivača
Keš krediti
Period otplate
13 meseci
