Lokal za izdavanje, Japanska, 8.400€, 700m²






































8.400 €
- Na 1. spratu od ukupno 1 sprat
- Oglas oglašava agencija pod reg. brojem 44
Opis oglasa
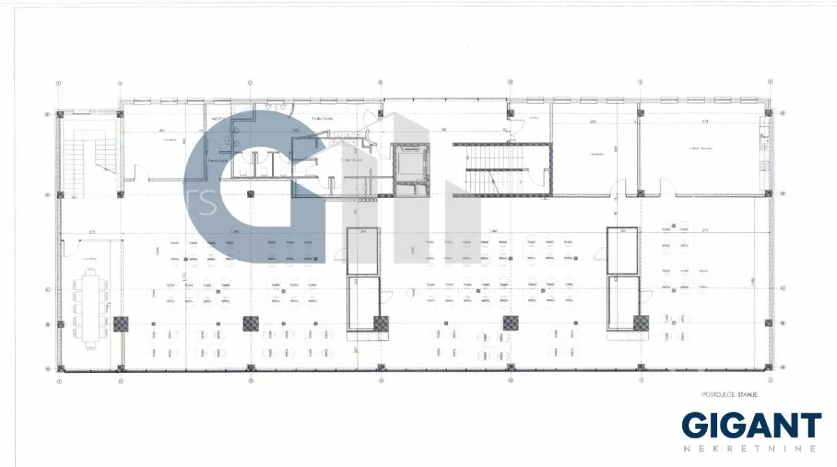
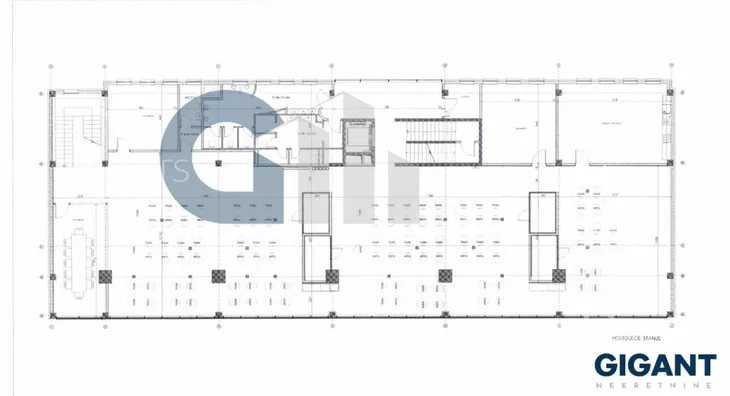
Stvarna površina-700m2 , ugovorna površina-677.00m2,
Izdaje se prostran i funkcionalan poslovni prostor.
Idealan za različite delatnosti: kancelarijski prostor, šou-rum, edukativni centar, škole stranih jezika, ordinacije, IT kompanije, maloprodaju, arhitektonske ili projektantske firme, fitness I rekreacija, ili kombinaciju više namena (kancelarije+prodajni deo+konferencijska sala…)
Lokacija
Prostor se nalazi na odličnoj lokaciji, u neposrednoj blizini glavnih saobraćajnica, sa lakim pristupom javnom prevozu.
Uz prostor se dobijaju dva sopstvena parking mesta. Visoka frekvencija ljudi u okruženju.
Karakteristike prostora
Ukupna površina:700 m? (mogućnost podele na više jedinica)
Otvoren tip prostora sa mogućnošću pregradnje po potrebi zakupca
Velika staklena površina - prirodno osvetljenje tokom celog dana
Grejanje (toplotne pumpe) Klimatizovano
Odvojeni sanitarni čvorovi, kuhinja
Slobodan parking oko objekta
Pogodno za firme koje žele reprezentativan prostor
Kombinacija funkcionalnosti , vidljivosti I prestiža
Pokrenite svoj posao na Novom Beogradu, tamo gde se ideje pretvaraju u uspeh.
Depozit u visini jedne mesečne zakupnine, mesečno plaćanje.
Agencijska provizija koju plaća zakupac pri zakupu ove nepokretnosti iznosi 50% - 100% od ugovorene cene zakupa
Oznaka na mapi pokazuje približnu lokaciju nekretnine ali ne i tačnu adresu
1/1 Japanska -imamo slicne NEKRETNINE BEOGRAD https://www.gigant.rs/property-detail.php?id=94564
*Sačuvaj oglas uz belešku i primaj obaveštenja o njihovom pojeftinjenju ili pojavljivanju sličnih
Prikaz poslovnog prostora na mapi
Parkovi u blizini
- Park Republike Argentine10 min
- Park Blok 7017 min
- Dečje igralište28 min

Obeležja kulture u blizini
- Hangar Starog aerodroma na Novom Beogradu11 min
- Česma11 min
- Stara osnovna škola11 min

Škole/Fakulteti/Vrtići u blizini
- Osnovna škola (Osnovna škola Jovan Sterija Popović)8 min
- Srednja škola (Srednja škola Kosta Cukić)10 min
- Vrtić (Privatni vrtić Mali Veseljak)6 min
- Fakultet (Visoka škola strukovnih studija za informacione tehnologije ITS)13 min

- Bolnica (Opšta bolnica Avala)11 min
- Klinika (Poliklinika As Medicus Biorezonanca)8 min
- Teretana (Arena No1 Fitness centar)6 min
- Prodavnica (Maxi Supermarket)3 min
- Restoran (Kineska hrana Golden Wok)6 min
- Kafana (Kafana Savski biseri)7 min
- Taksi stajalište (Taxi stanica)4 min
- Autobuska stanica (Blok 63)1 min
- Banka (Poštanska štedionica)7 min
- Pošta (Pošta Beograd 140)8 min
Kontakt oglašivača

Keš krediti
Period otplate
13 meseci