Poslovni prostor za izdavanje, Bulevar Zorana Đinđića, 750€, 56m²


























750 €
- Prizemlje od ukupno 4 sprata
- Renovirano
- Prostorije: toalet
- Opremljenost: Polunamešteno - interfon, klima
- Oglas oglašava agencija pod reg. brojem 591
- Kablovska
Opis oglasa
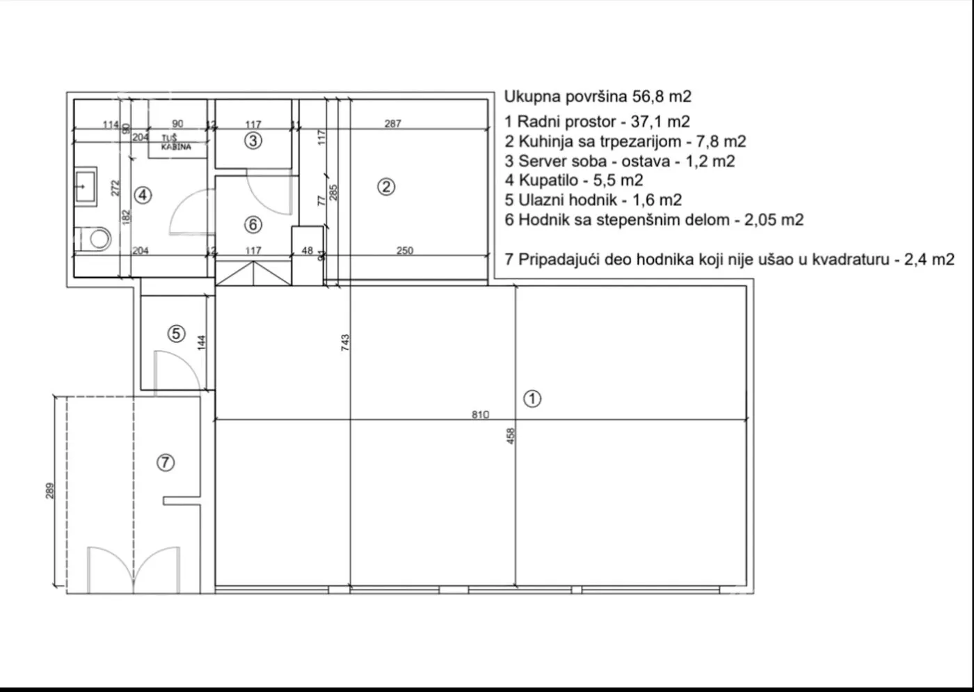
Odličan, kompletno renoviran lokal u Bloku 30 u neposrednoj blizini Beogradske Arene u samom centru Novog Beograda.
Lokal ima poseban ulaz sa ulice, a između ulaza i trotoara je 5-6 metara zelene površine.
Odličan izbor za vodjenje poslovnih aktivnosti.
Lokal je okružen obiljem parkinga u zelenoj i plavoj zoni, a ispod su garaže stanara zgrade.
Lokacija Vam nudi odličnu povezanost sa centrom grada i autoputem.
Izdaje se prazan.
Moguća je i prodaja, cena je 224900 €
Agencijska provizija je 50% jedne mesečne zakupnine.
Šta podrazumeva agencijska provizija od 50% pri zakupu nepokretnosti:
Agencija, zajedno sa agentom, je tu za Vas vezano za:
- razgledanje nepokretnosti na terenu,
- vođenje celokupnog procesa oko zakupa,
- izradu Ugovora o zakupu,
- pružanje pomoći u pregovorima,
- organizovanje primopredaje i svega ostalog što podrazumeva Zakon o posredovanju u prometu i zakupu nepokretnosti.
Agencija i agent koji Vam je dodeljen, su od prvog dana saradnje, do konačno završenog posla, Vaša pomoć i podrška.
*Sačuvaj oglas uz belešku i primaj obaveštenja o njihovom pojeftinjenju ili pojavljivanju sličnih
Prikaz poslovnog prostora na mapi
Parkovi u blizini
- Dečje igralište31 min
- Park Republike Srpske37 min
- Park Diane Budisavljević37 min

Obeležja kulture u blizini
- Spomenik Žambilu Zambajevu9 min
- Spomenik Konfuciju9 min
- Logor Gestapoa Staro Sajmište11 min

Škole/Fakulteti/Vrtići u blizini
- Osnovna škola (Osnovna škola Jovan Dučić)7 min
- Srednja škola (Deseta beogradska gimnazija Mihajlo Pupin)6 min
- Vrtić (Dečiji vrtić Ana)5 min
- Fakultet (Fakultet za ekonomiju, finansije i administraciju)5 min

- Bolnica (Bolnica za lečenje steriliteta BIS Intermedicus)5 min
- Klinika (Poliklinika Alfa Medica)7 min
- Teretana (Body building i fitness klub Ahilej)manje od 1 min
- Prodavnica (Market Sova)5 min
- Restoran (Siesta La Cocina & Bar)5 min
- Kafana (Srpska kuća piva)8 min
- Taksi stajalište (Taxi stanica)13 min
- Autobuska stanica (Beogradska Arena)5 min
- Tramvajska stanica (Sava Centar)15 min
- Trolejbuska stanica (Studentski trg)45 min
- Banka (Raiffeisen Bank)5 min
- Pošta (Pošta Beograd 55)5 min
Kontakt oglašivača
Krediti OTP banke
Period otplate
13 mesecimesečno
Period otplate 13 - 71 mesec
Saznaj više




















