Četvorosoban stan na prodaju, Ustanička, 273.554€, 89m²










273.554 €
3.074 € / m2
- Stan u zgradi
- Novo
- Prostorije: terasa
- Opremljenost: Prazno - internet, interfon, klima, kanalizacija
- Uknjiženo
- Oglas oglašava agencija pod reg. brojem 1564
- 1 garažno mesto
- 1 parking mesto
- 1 lift
- Kanalizacija
- Zgrada poseduje: lođa, video nadzor
- Kablovska
- 1 telefonska linija
Opis oglasa
Smart Home novogradnja premium kvaliteta na početku Ustaničke pruža udobnost i tehnologiju budućnosti već danas.
Multi split sistemi, toplotne pumpe, podno grejanje i fan-coil uređaji — sve pod kontrolom, direktno sa tvog telefona.
Južna, sunčana orijentacija donosi svetlost i toplinu tokom celog dana. Idealno spojeni stil, komfor i energetska efikasnost.
** U ponudi su stanovi različitih struktura. Ovaj tip stana se nalazi na I, II i III spratu.
** Cene parking/garažnog mesta - autoplatforma 20.000€ +pdv, klasično parking mesto 30.000€ +pdv
** U cenu stana nije uračunat PDV koji iznosi 10% i za koji se može dobiti povrat ukoliko vam je ovo prvi stan.
** Useljenje - prva polovina 2026.
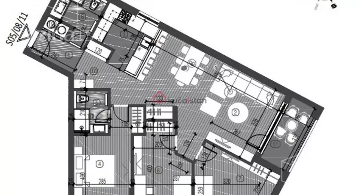
Struktura:
- dnevna soba sa trpezarijom i kuhinjom
- tri spavaće sobe
- dva kupatila
- terasa
Moderno projektovanje, visok kvalitet materijala i završne obrade :
- Fasada je spoj belgijske opeke i granitne ventilisane obloge.
- Zvučna i termo izolacija osigurana sendvič zidovima.
- Višeslojni hrastov parket I klase
- Aluminijum stolarija vanstandardnih dimenzija
- Italijanskom keramikom i Hansgrohe sanitarijama
- Align Conel elektrogalanterijom s video-interfonom
- Blind sigurnosna ulazna vrata
Grejanje i hlađenje:
- Manji stanovi: multi split sistemi + elektro podno grejanje
- Veći stanovi: toplotne pumpe vazduh–voda, podno grejanje + FC uređaji
- Pametna kontrola grejanja i hlađenja putem mobilne aplikacije.
Lokacija:
Smeštena u jednoj od najtraženijih ulica, ova lokacija pruža savršen balans između mirnog porodičnog života i odlične povezanosti sa svim delovima grada. U neposrednoj blizini se nalaze škole, vrtići, dom zdravlja, marketi, banke, apoteke, teretane i brojne gradske linije koje omogućavaju brz i jednostavan pristup centru, kao i autoputu. Ulica je široka, sa uređenim trotoarima i zelenilom, a okruženje odlikuje kombinacija savremenih objekata i uređenih stambenih zona. U blizini su i parkovi i sportski centri, idealni za rekreaciju i svakodnevne aktivnosti.
Agencija: Kuća i stan DOO,
Hadži Prodanova 14/1,
Beograd/Vračar,
Reg. br. agencije: 1564
*Sačuvaj oglas uz belešku i primaj obaveštenja o njihovom pojeftinjenju ili pojavljivanju sličnih
Prikaz stana na mapi
Parkovi u blizini
- Park Šumice3 min
- Park Urbani džep17 min
- Park mira Jelena Šantić23 min

Obeležja kulture u blizini
- Spomenik Franše Depereu9 min
- Kuća Flašar10 min
- Spomenik oslobodilaca Beograda 1806. godine10 min

Škole/Fakulteti/Vrtići u blizini
- Osnovna škola (Osnovna škola Janko Veselinović)5 min
- Srednja škola (Osma beogradska gimnazija)5 min
- Vrtić (Dečiji vrtić Biseri)5 min
- Fakultet (Univerzitet Singidunum)9 min

- Bolnica (Specijalna bolnica za hemodijalizu Dragačevska Fresenus Medical Care)6 min
- Klinika (Poliklinika Equilibrium)9 min
- Teretana (Školica sporta Activity Centar)6 min
- Prodavnica (Markom Expo market)5 min
- Restoran (Restoran Hong Kong)6 min
- Kafana (Pivnica Berza piva)6 min
- Taksi stajalište (Taxi stanica)5 min
- Autobuska stanica (Grčića Milenka)4 min
- Tramvajska stanica (Pijaca Zvezdara)22 min
- Trolejbuska stanica (Grčića Milenka)11 min
- Banka (OTP banka)7 min
- Pošta (Pošta Beograd 11)6 min
Kontakt oglašivača
Stambeni krediti

- Period otplate od
96 -360 meseca
- NKS 4.75%
EKS 5.74%
Fiksna kamatna stopa
- Bez troškova obrade kredita
stranici kreditnih kalkulatora
Keš krediti
Period otplate
13 meseci
