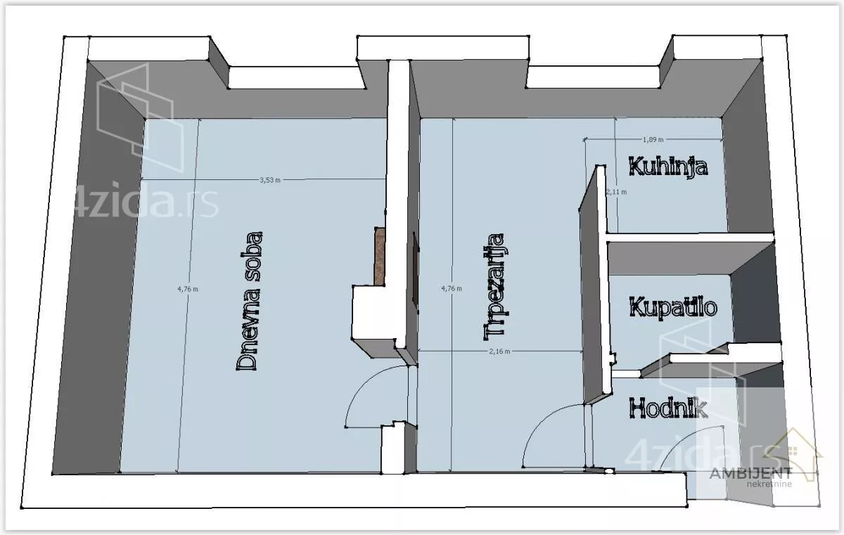
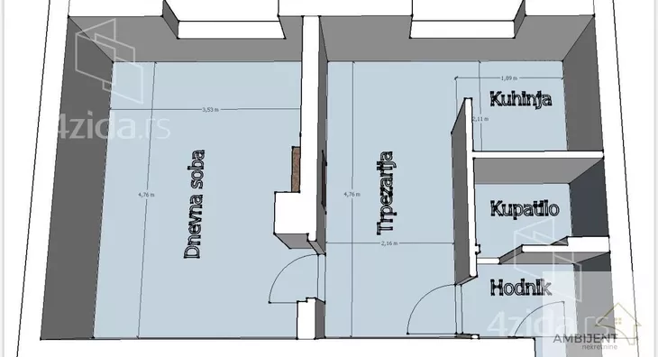
Jednosoban stan na prodaju, Braće Jerković, 125.000€, 37m²


































125.000 €
3.378 € / m2
- Stan u zgradi
- Centralno grejanje
- Prostorije: kuhinja
- Opremljenost: Namešteno - internet, interfon, TV, klima, veš mašina, sudo mašina, frižider, rerna, ležaj, plakar, kanalizacija
- Uknjiženo
- Oglas oglašava agencija pod reg. brojem 1667
- Kanalizacija
- Kablovska
Opis oglasa
ID 1323
Za dodatne informacije i zakazivanje obilaska, pozovite nas na 064... (prikaži broj telefona) .
U ponudi moderno opremljen stan u naselju Braće Jerković.
Ima 37m2 i čine ga dnevna soba, kuhinja sa trpezarijom,hodnik i kupatilo.
Prodaje se kompletno opremljen i odmah je useljiv.
Na odličnoj lokaciji u čijoj blizini se nalaze veliki marketi, škole, autobuska stajališta, dom zdravlja i svi drugi neophodni sadržaji.
Agencijska provizija je 2% od kupoprodajne cene.
Broj u registru posrednika: 1667.
*Sačuvaj oglas uz belešku i primaj obaveštenja o njihovom pojeftinjenju ili pojavljivanju sličnih
Prikaz stana na mapi
Parkovi u blizini
- Park Jove Ilića16 min
- Banjička šuma19 min
- Bajronov park27 min

Obeležja kulture u blizini
- Spomenik Franše Depereu12 min
- Kuća Flašar14 min
- Spomenik heroju Milanu Tepiću15 min

Škole/Fakulteti/Vrtići u blizini
- Osnovna škola (Osnovna škola Đura Daničić)9 min
- Srednja škola (Srednja škola Vasa Stajić)9 min
- Vrtić (Dečiji vrtić Zvončica)8 min
- Fakultet (Univerzitet u Beogradu Saobraćajni fakultet)7 min

- Bolnica (Opšta bolnica St Medica)5 min
- Klinika (Poliklinika Voždmedik)6 min
- Teretana (Maximum Effect Fitness & Gym)7 min
- Prodavnica (Maxi Supermarket)6 min
- Restoran (Restoran Intermeco)5 min
- Kafana (Pinta Pub)7 min
- Taksi stajalište (Taxi stanica)3 min
- Autobuska stanica (Meštrovićeva)3 min
- Tramvajska stanica (Nikšićka)14 min
- Trolejbuska stanica (Svetozara Radojčića)21 min
- Banka (Banca Intesa)4 min
- Pošta (Pošta Beograd 48)8 min
Kontakt oglašivača
Krediti OTP banke
Saznaj više
Prikazana rata odnosi se na maksimalni period otplate. Kalkulator je informativnog karaktera.
* Nakon isteka 5 godina, prelazi se na varijabilnu kamatnu stopu


