Dvosoban stan za izdavanje, Crveni Krst Vračar, 700€, 41m²


























- Kvadratura: 41m²
- Na 2. spratu od ukupno 5 spratova
- Novo
- Opremljenost: Namešteno - internet, klima
- Oglas oglašava agencija pod reg. brojem 1873
- 1 lift
- Kablovska
- 1 telefonska linija
Opis oglasa
Odličan stan na Vračaru kompletno namešten
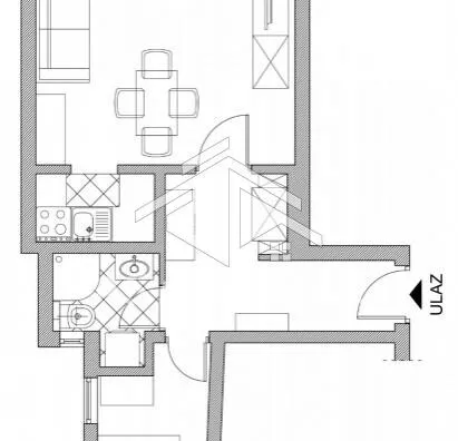
Za izdavanje je kompletno namešten dvosoban stan površine 41 m2, smešten na drugom spratu novogradnje sa ukupno pet spratova u ulici Vojvode Šupljikca, opština Vračar, Beograd.
Stan se sastoji od ulaznog dela, dnevne sobe sa trpezarijom, kuhinje, kupatila i spavaće sobe. Izdaje se potpuno opremljen sa novim nameštajem i tehnikom, spreman za useljenje.
Stan ima centralno grejanje, klima uređaj i lift.
Moguća je prijava prebivališta stanara i boravišta stranaca za beli karton.
Stan je odmah useljiv i nalazi se na odličnoj lokaciji sa brzom povezanošću sa centrom grada.
Za više informacija i razgledanje kontaktirajte nas.
Agencijska provizija iznosi 50% od prve zakupnine.
ID oglasa: 44579
*Sačuvaj oglas uz belešku i primaj obaveštenja o njihovom pojeftinjenju ili pojavljivanju sličnih
Prikaz stana na mapi
Kontakt oglašivača
Krediti OTP banke
Period otplate
13 mesecimesečno
Period otplate 13 - 71 mesec
Saznaj više

