Proizvodni pogon za izdavanje, Zemunska 15, 800€, 200m²






















800 €
mesečno
- Obavezan depozit 1.000 €
- Prizemlje od ukupno 1 sprat
- Uobičajeno stanje
- Prostorije: toalet, kuhinja
- Izdavanje direktno od vlasnika
Opis oglasa
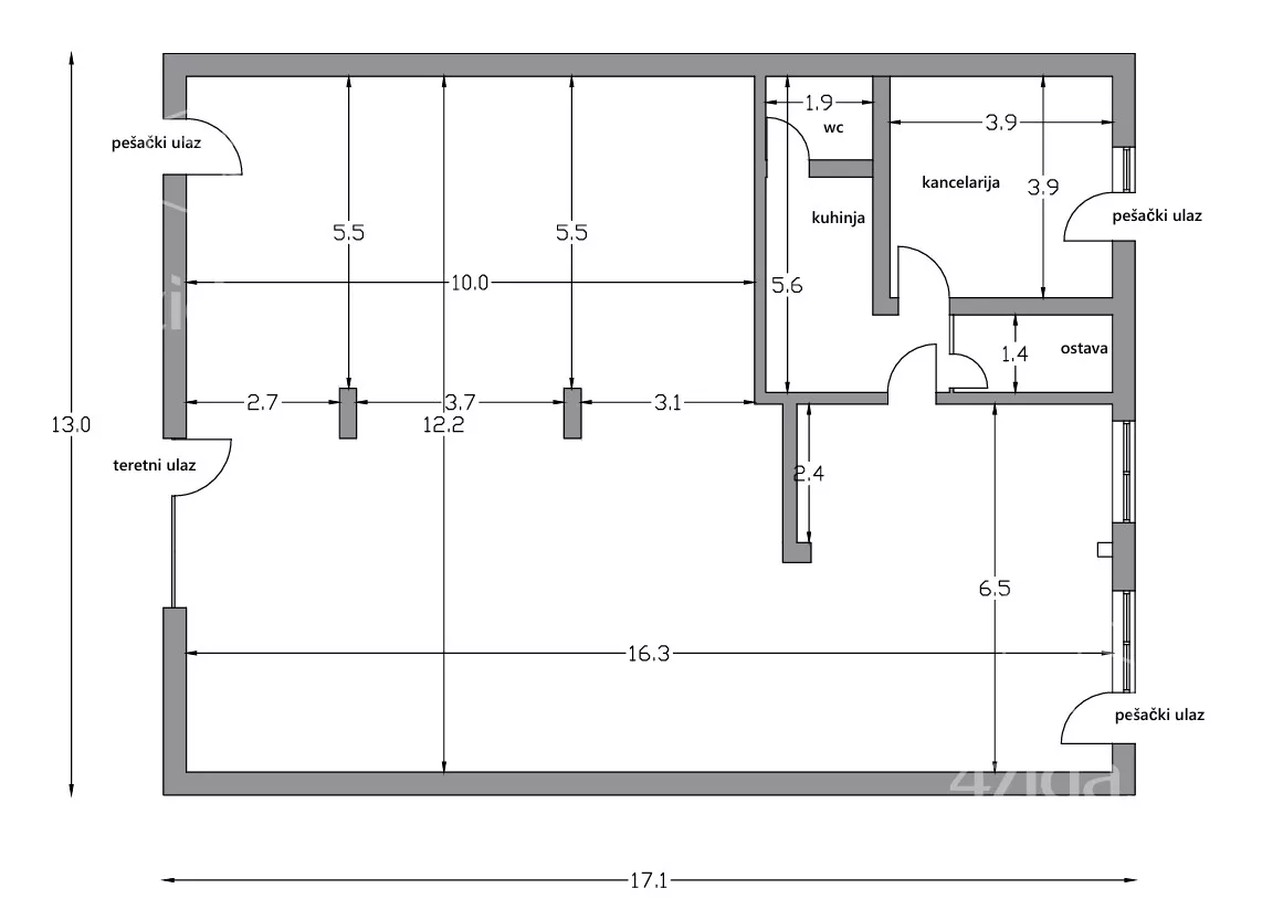
Izdajemo proizvodno - magacinski prostor povrsine 200 kvadrata.
Visina plafona je oko 3 metara.
Vlasnik objekta je Pravno lice.
U okviru Objekta se nalazi kancelarija , kuhinja , kupatilo, mala ostava i proizvodno magacinski prostor.
Ovaj Objekat deli dvoriste sa jos jednim objektom.
Plac je ogradjen .
Grejanje je na struju ( dve klime ) po potrebi grejalice...
Objekat ima 2 strujna brojila.
Cena izdavanja je 800 eur + pdv u zimskim mesecima ( Decembar , Januar , Februar, Mart )
1000 eur + pdv u ostalom periodu.
Depozit 1000 eur
Omogucen je prilaz vecih kamiona , kapija je sirine 7 met.
prostor je useljiv od prvog decembra.
*Sačuvaj oglas uz belešku i primaj obaveštenja o njihovom pojeftinjenju ili pojavljivanju sličnih
Prikaz poslovnog prostora na mapi
Obeležja kulture u blizini
- Spomenik Nikoli Tesli17 min
- Spomenik palim borcima24 min
- Hangar Starog aerodroma na Novom Beogradu26 min

Škole/Fakulteti/Vrtići u blizini
- Osnovna škola (Osnovna škola Stanko Marić)5 min
- Srednja škola (Srednja politehnička škola Politehnika)22 min
- Vrtić (Dečiji vrtić Roda)4 min
- Fakultet (SMATSA školski centar)15 min

- Bolnica (Klinika za lečenje bolesti zavisnosti MedTim)23 min
- Klinika (Poliklinika Holimed)13 min
- Teretana (Teretana B Gym)14 min
- Prodavnica (PerSu market)4 min
- Restoran (Restoran i dečija igraonica Moj kafe)5 min
- Autobuska stanica (Ugrinovci /Ulaz/)4 min
- Banka (OTP banka)13 min
- Pošta (Pošta Ugrinovci)4 min
Kontakt oglašivača

Keš krediti
Period otplate
13 meseci